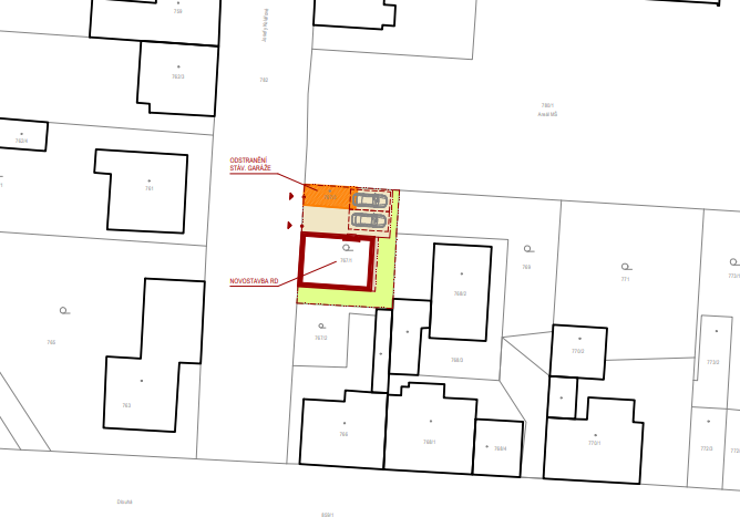
Prodej pozemku se stavebním povolením na RD s užitnou plochou 94,5 m²
Nabízíme k prodeji stavební pozemek o výměře 177 m² v klidné ulici Josefy Kolářové v Českých Budějovicích, určený k výstavbě rodinného domu. Na pozemku se již nachází garáž 17 m2, kterou lze využít jak pro parkování, tak třeba jako sklad nebo zázemí při stavbě. Pozemek se nachází v zavedené zástavbě rodinných domů v blízkosti sídliště Vltava, takže máte na dosah veškerou občanskou vybavenost, přitom ale bydlíte v klidné části města. Centrum Českých Budějovic je vzdálené přibližně 2 km.
Součástí prodeje je projekt moderního rodinného domu o dispozici 3+kk a platné stavební povolení, takže můžete začít stavět bez zdlouhavého vyřizování. Navržený dům má zastavěnou plochu 62,2 m² a užitnou plochu 94,5 m². V přízemí se počítá s obývacím pokojem s kuchyňským koutem, zádveřím, technickým zázemím a samostatným WC, v patře pak se dvěma pokoji a koupelnou. Projekt myslí i na praktické detaily, jako je úložný prostor a parkování přímo na pozemku.
Dům je navržen jako energeticky úsporný, s tepelným čerpadlem a podlahovým vytápěním, s předpokládanou energetickou třídou B, tedy s velmi nízkými provozními náklady. Velkou výhodou je možnost přizpůsobit si interiér podle vlastních představ, od podlah a dveří až po obklady, dlažby a sanitu.
Orientační náklady na výstavbu domu ve středním standardu se dle aktuálních cen pohybují přibližně mezi 4,0 a 5,0 mil. Kč. Konkrétní cena se může lišit podle zvolených materiálů, technologií a individuálních požadavků budoucího majitele.
Ideální nabídka pro někoho, kdo chce stavět rychle, bez nejistoty kolem povolení, a zároveň mít jasnou představu o výsledné podobě i nákladech.
Nabídková cena 2.500.000,- Kč








Dům se nachází ve staré zástavbě v blízkosti sídliště Vltava, které nabízí veškerou občanskou vybavenost, Obchodní centrum Vltava 400 m, Kaufland 400 m, Poliklinika Vltava 200 m, škola 500 m, školka 150 m.
Vzdálenost od centra města je 2,5 km, tj. 5 minut autem, nebo 15 minut autobusem. Zastávka MHD je vzdálená 400 m.
Zároveň nabízí široké možnosti využití volného času. Přírodní rezervace Vrbenské rybníky je vzdálená 600 m, cyklostezka Boršov - Purkarec 900 m, sportovní areál ČEZ Vltava s přírodní pláží 900 m, vodácký areál Lídy Polesné 2,5 km, Park Čtyři Dvory se skateparkem a dalším sportovním využitím 400 m.


